След като транспортната комисия към Столичния общински съвет (СОС) одобри днес предложенията за разширяване на зелената зона с части в "Красно село", "Възраждане", "Оборище" и напълно в "Лозенец", на 22 февруари се очаква СОС да утвърди промените. Те ще разширят съществуващите сега райони за платено паркиране с още 5500 нови места.
Очаква се те да влязат в сила през юни, тъй като е необходимо време за маркиране на районите и поставяне на колчета. Районната община "Триадица" е започнала разговори за веждането на зелена зона за паркиране по бул. "Витоша" до входа на Южния парк.
След като в "Лозенец" беше въведена зелена зона в долната част на квартала, сега предстои това да стане и в горната, с което целият район става зелена зона - паркиране срещу заплащане по 1 лев на час. (В синята е 2 лева на час.)
Къде са промените
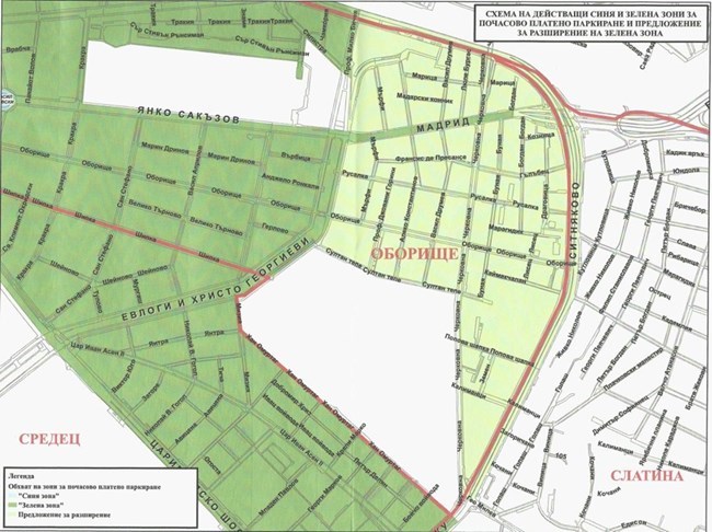
Разширение с близо 1100 места на зелената зона в "Оборище" - между бул. "Христо и Евлоги Георгиеви", бул. "Данаил Николаев", бул. "Ситняково", ул. "Черковна" и ул. "Султан тепе".
Около 700 паркоместа в зелената зона в "Красно село" - в квартал "Крива река": между бул. "Гешов", бул. "П. Славейков", бул. "Тотлебен" и ул. "Г. Софийски", и в карето между ул. "Добруджански край", ул. "Йоаким Кърчовски", бул. "Тотлебен" и бул. "Скобелев".
Близо 1400 места в район "Възраждане": в участъка между булевардите "Сливница", "К. Величков", "Скобелев" и "Опълченска" - тоест в кварталите "Зона Б5" и "Зона Б18".
Предстои обществено обсъждане на предложението на район "Триадица" зелената зона да стига до входа на Южния парк откъм бул. "Витоша", около пазар "Иван Вазов".


Подкрепете ни
Уважаеми читатели, вие сте тук и днес, за да научите новините от България и света, и да прочетете актуални анализи и коментари от „Клуб Z“. Ние се обръщаме към вас с молба – имаме нужда от вашата подкрепа, за да продължим. Вече години вие, читателите ни в 97 държави на всички континенти по света, отваряте всеки ден страницата ни в интернет в търсене на истинска, независима и качествена журналистика. Вие можете да допринесете за нашия стремеж към истината, неприкривана от финансови зависимости. Можете да помогнете единственият поръчител на съдържание да сте вие – читателите.
Подкрепете ни