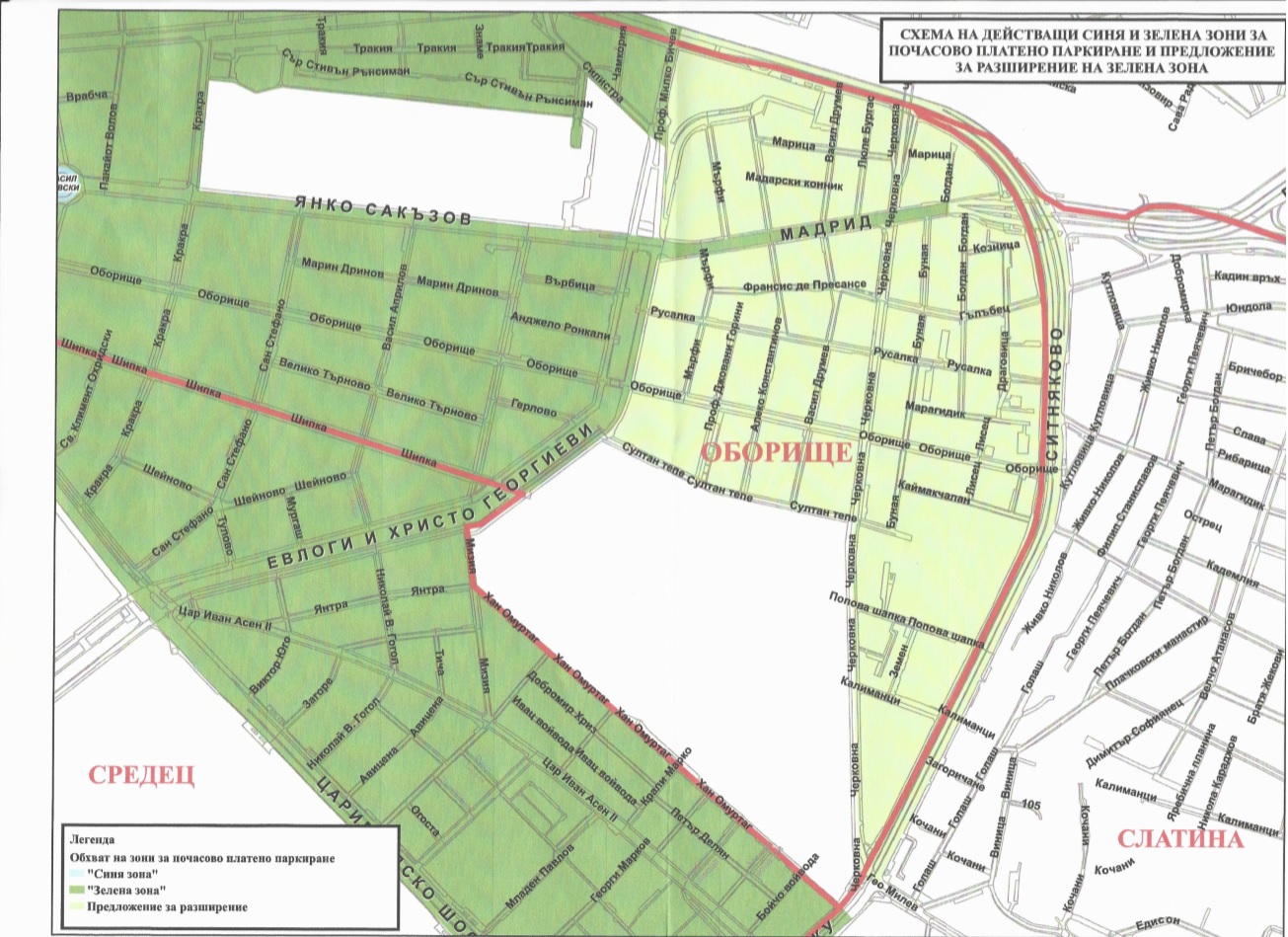
Комисията по транспорт и туризъм към Столичната община ще разгледа утре исканията на четирима районни кметове за увеличаване на зелената зона. Става въпрос за районите "Оборище", "Лозенец", "Възраждане" и "Красно село".
Дискусия за разширяване на зоната за платен престой тече отдавна, обществените обсъждания са минали. Жители на кв. "Лозенец" дори се организираха в протест срещу зоната. Зам.-председателят на комисията по транспорт Калоян Паргов (БСП) обаче възнамерява да постави въпроса достатъчно изчерпателни ли са били тези обществени обсъждания и дали са били взети предвид всички мнения на гражданите, живущи в съответните райони", заяви той пред Клуб Z.
Престоят в зелената зона е 1 лев на час, а живеещите в района могат да заплатят годишен стикер и да паркират срещу 100 лева.

Предвижда се в район "Оборище" да се обособят нови платени паркоместа по бул. "Христо и Евлоги Георгиеви", бул. "Ген. Данаил Николаев", бул. "Ситняково", ул. "Черковна" и ул. "Султан тепе".

В "Красно село" платената зона ще обхване местността Крива река, в границите между бул. "Ген. Ед. Тотлебен", бул. "Пенчо Славейков", ул. "Св. Георги Софийски" и бул. "Акад. Ив. Евст. Гешов" и в местността Еврейски гробища в границите между бул. "Ген. М. Д. Скобелев", бул. "Ген. Ед. Тотлебен", ул. "Йоаким Кърчовски" и ул. "Добруджански край".
В район "Възраждане" зоната ще е в границите между булевардите "Сливница", "К. Величков", "Ал. Стамболийски", улиците "Гюешево", "Партений Нишавски", "Българска морава", "К. Андреев", "Добруджански край", бул. "Скобелев", улиците "Опълченска" и "Д. Петков". Това са границите на кварталите "Зона Б-18" и "Зона Б-5".

От 1 октомври м.г. зоната вече бе разширена в "Лозенец" и "Средец". Столичният общински съвет реши да бъдат разкрити 1193 платени паркоместа и отделно още 31 инвалидни в "Средец". Те са в участъка между булевардите "Цариградско шосе", "Евлоги и Христо Георгиеви", "Михай Еминеску" и улиците "Мизия" и "Хан Омуртаг". Бе взето решение в „Лозенец" да се въведат 3500 места за платено паркиране в участъка между булевардите "Евлоги и Христо Георгиеви", "Драган Цанков", "Джеймс Баучер" и "Черни връх".

Сега предстои разширение на зелената зона и в "Горни Лозенец". Новите зони ще са от бул. "Джеймс Баучер", пл. "Велчова завера", бул. "Стоян Михайловски", бул. "П. К. Яворов", бул. "Никола Й. Вапцаров", ул. "Атанас Дуков", ул. "Люба Величкова", ул. "Сребърна", ул. "Хенрих Ибсен", ул. "Козяк" до бул. "Джеймс Баучер".
Подкрепете ни
Уважаеми читатели, вие сте тук и днес, за да научите новините от България и света, и да прочетете актуални анализи и коментари от „Клуб Z“. Ние се обръщаме към вас с молба – имаме нужда от вашата подкрепа, за да продължим. Вече години вие, читателите ни в 97 държави на всички континенти по света, отваряте всеки ден страницата ни в интернет в търсене на истинска, независима и качествена журналистика. Вие можете да допринесете за нашия стремеж към истината, неприкривана от финансови зависимости. Можете да помогнете единственият поръчител на съдържание да сте вие – читателите.
Подкрепете ни